14407 W Lake Ridge DriveEagle River, AK 99577
Due to the health concerns created by Coronavirus we are offering personal 1-1 online video walkthough tours where possible.




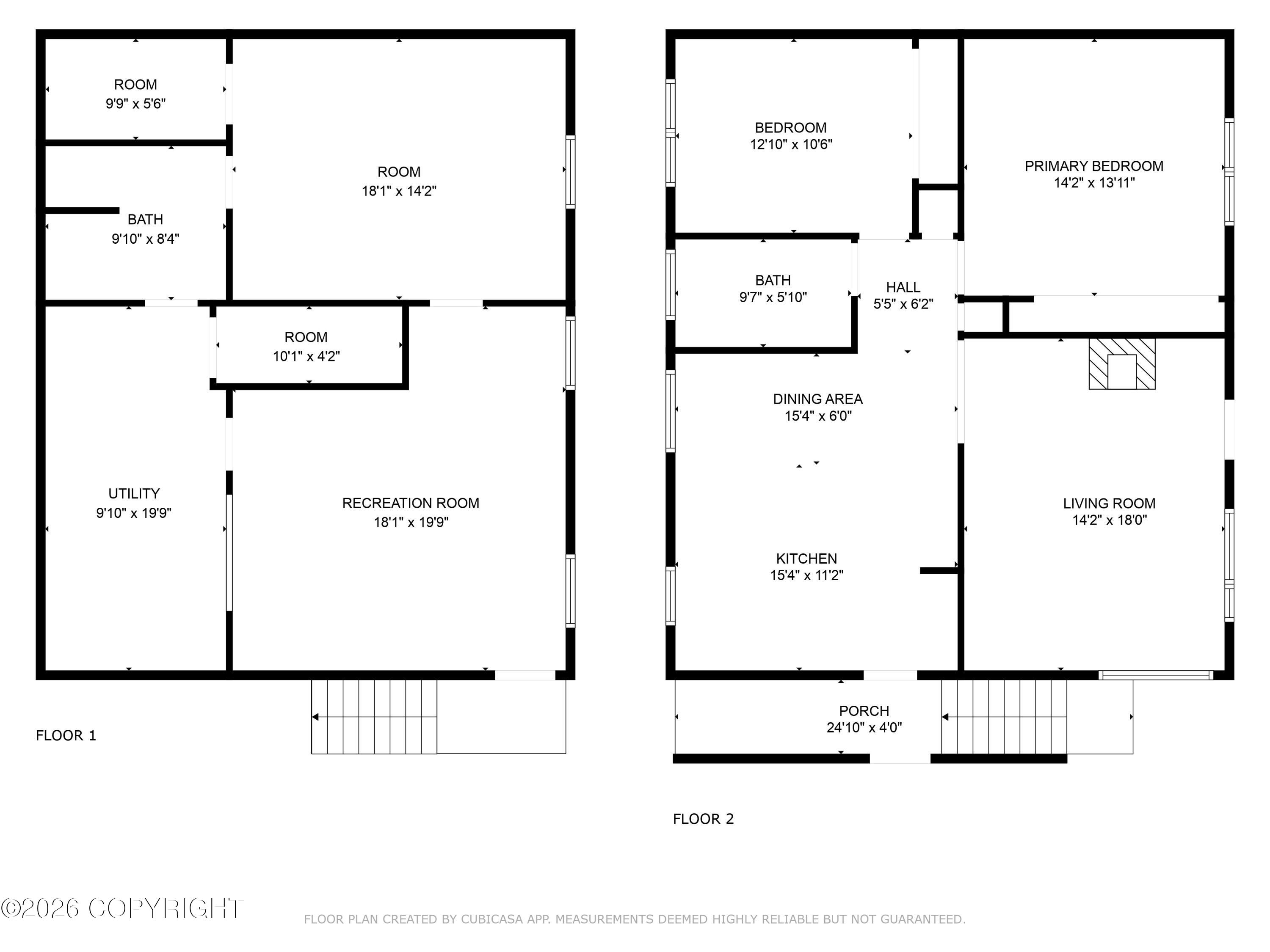
Amazing waterfront opportunity on Lower Fire Lake! This wonderful lakefront raised ranch offers versatility with potential for residential or duplex use, floatplane dock potential w/ over 120 ft waterfront (BTV). Enjoy the layout and thoughtful extras upstairs, downstairs includes more living space or duplex for income potential, back deck with lake views private retreat. Rare chance for property on the lake. Extras include: Solid oak hardwood floors, Solid cherry kitchen cabinets upstairs, granite countertops, farm sink with pro-style pre-rinse sprayer faucet, GE Cafe stove and refrigerator, Miele dishwasher, GE beverage cooler, Tile bathroom upstairs with Kohler fixtures and heated tub, Wrap around upper deck and lower level deck with sauna, Solid copper plumbing, 200 amp electrical service panel with grounded wiring and generator safety switch, Certified "Four Star Plus" energy rating, High efficiency forced air gas furnace and new high efficiency water heater, Pella wood casement windows, Fiber optic cable, Independent basement apartment for duplex potential. The detached garage provides plenty of space for storage and work shop. The roof was replaced in about 2010. COSA completed
| a week ago | Listing first seen on site | |
| a week ago | Listing updated with changes from the MLS® |
The listing content relating to real estate for sale on this website comes in part from the IDX Program of Alaska Multiple Listing Service, Inc. (AK MLS). Real estate listings held by brokerage firms other than eXp Realty, Inc. are marked with either the listing brokerage's logo or the AK MLS logo, and information about them includes the name of the listing brokerage. All information is deemed reliable but is not guaranteed and should be independently verified for accuracy. Listing Information is updated daily. Copyright 2026 Alaska Multiple Listing Service, Inc. All Rights Reserved.
Last checked: 2026-02-28 01:51 PM UTC. Data Services Provided by Showcase IDX.

Did you know? You can invite friends and family to your search. They can join your search, rate and discuss listings with you.